Apartamento
Barra de Carrasco, ref:
222686
Consultar
A $38.000
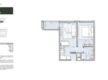
Con una superficie de 7500 m2 en primera línea al mar, Costanera Village es un oasis en medio de la ciudad, con 1,500 metros cuadrados de impresionantes jardines que ofrecen a los residentes un ambiente relajado y tranquilo sin alejarse demasiado de la ciudad. Ubicado sobre la Rambla Costanera, entre Capri y Acapulco, el desarrollo cuenta con un concepto único de cinco villages, construido en dos etapas. Cada unidad está diseñada con los más altos estándares de calidad, apostando a la calidad de vida de sus residentes, calidad en terminaciones, portería y control de acceso, cctv, todo con gastos comunes bajos. Con el sello Kopel-Sanchez. Además, todas las unidades tendrán acceso a áreas de uso compartido como: - Barbacoas y bar - Players area - Outdoor Gym - Salones Multiuso - Sauna - Espacio infantil El apartamento en alquiler a estrenar cuenta con 1 dormitorio, cuenta con living-comedor, terraza, cocina integrada, con mobiliario bajo mesada y aéreos. Equipado con horno, anafe y campana. Previsión para lavarropas y calefón. Pisos de vinílico de alto transito Verona, cortinas de enrollar motorizadas y previsión para aire acondicionado. Contactate con nosotros para coordinar visita! Consultanos por esta y otras unidades en venta y alquiler en Costanera Village. Garantía de seguros y contrato mínimo de 2 años.
