Apartamento
Barra de Carrasco, ref:
246785
Consultar
USD270.000
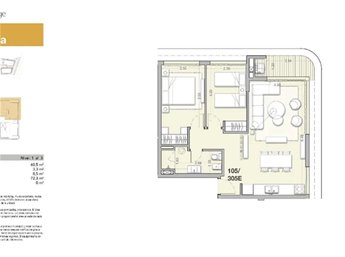
Costanera Village última unidad disponible en venta de 2 dormitorios con entrega inmediata!! Con una superficie de 7500 m2 en primera línea al mar, Costanera Village es un oasis en medio de la ciudad, con 1,500 metros cuadrados de impresionantes jardines que ofreceran a los residentes un ambiente relajado y tranquilo sin alejarse demasiado de la ciudad. Ubicación: Rambla Costanera entre Capri y Acapulco. El desarrollo cuenta con un concepto único de cinco villages, cada una con su propia personalidad, con apartamentos de uno a cuatro dormitorios. Cada unidad está diseñada con los más altos estándares de calidad, con detalles contemporáneos y terminaciones (pisos, revestimientos, griferías) de primera línea. Además, todas las unidades tendrán acceso a áreas de uso compartido, incluyendo piscina, solarium, barbacoa, gimnasio al aire libre y mucho más. - Barbacoas y bar - Players area - Outdoor Gym - Salones Multiuso - Piscina - Solarium Además de comodidades como - Pick up lockers - Handyman rooms - Laundry - Bike garaje. Unidad - 105E Village - Marsella Cochera abierta incluida en el precio. La unidad cuenta con 2 dormitorios y 1 baño completo de muy buen tamaño. Todos los ambientes tienen orientación norte, con amplios ventanales. 1 baño completo, con previsión para calefón y espejo incluido. Esta equipada con ventanas DVH y cortina de enrollar eléctrica en todos los ambientes, loza radiante electica individual por unidad y por ambiente. Horno, anafe y campana ya vienen incluidos en la unidad, como también un parrillero individual para disfrutar en la terraza! Terminaciones de primera calidad, con marcas asociadas como Bosch, griferías genebre, porcelanato portobello y más Unidad única e imperdible, contáctanos por mas información! Gasto de ocupación 4,5% y Comisión inmobiliaria 3%+IVA
